Login | Blog | Shopping Cart | Contact us |  1-855-404-2284  

Free Shipping On Order Over $49.99

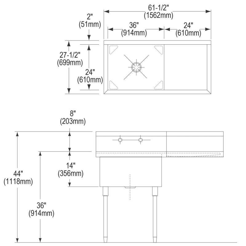
Weldbilt Stainless Steel 61-1/2" X 27-1/2" X 14" Floor Mount Single Compartment 0-Hole Scullery Sink W/Right Drainboard, WNSF8136R0 Buffed Satin


Weldbilt Stainless Steel 61-1/2" X 27-1/2" X 14" Floor Mount Single Compartment 0-Hole Scullery Sink W/Right Drainboard, WNSF8136R0

  • 7000.00$7,000.00
  • Only 1 in Stock
  • Free Shipping on order over $49.99
  • Brand: Elkay
  • Model # WNSF8136R0

Qty

Share by Email Add to Houzz Tweet Pin This Share

Elkay has been a trusted name in stainless steel since 1920. We are proud to be America's No. 1 selling kitchen sink company. In addition, we offer prep, bar, bath and laundry sinks. Elkay commercial sinks can be found in public spaces such as classrooms, office buildings, health care facilities, parks and recreation areas and more. Available in ADA depths.

  • Superior quality 14-gauge, Type 304 stainless steel
  • Designed to withstand the heavy-duty requirements of hotel, restaurant, cafeteria and other commercial kitchens
  • Sink compartments have welded 1/4" radius coved corner construction; ground smooth for easy cleaning
  • Channel rim design with 2" apron, slanting sanitary turn under and inward sloping rim to minimize spillage
  • 8" high, full-length, sloped backsplash resists grime and is 2" thick to allow for plumbing
  • Sink polished to a uniform lustrous satin finish
  • Drainboard and sink compartments pitched to drain
  • 3-1/2" drain opening centered in each compartment
  • Stainless steel tubular legs, 1-5/8" OD with up to 1" adjustable, bullet-shaped stainless steel feet
ASME Standards ASME A112.19.3
Backsplash Height 8
Brand Elkay
CSA Standards CSA B45.4
Drain Placement Bowl 1 Center Center
Drain Size Bowl 1 3.5
Drainboard Type Right
Features Faucets DRAINBOARD
Length Bowl 1 36
NPCC Yes
Prop 65 Warning Yes
Sink Depth 14
Specifications Spec Sheet
Warranty
Width Bowl 1 24
Product Type Cis
Collection Elkay®,Weldbilt®
Color Buffed Satin
Width (in) 27.5
Length (in) 61.5
Height (in) 44
Material Stainless Steel
Weight (lb) 116
Ada Compliant No
Application Foodservice
Gauge 14
Installation Scullery
Number of Bowls 1
UPC Listed cUPC

Write a review

Please login or register to review
The product is currently Out-of-Stock. Enter your email address below and we will notify you as soon as the product is available.